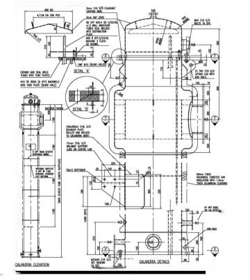
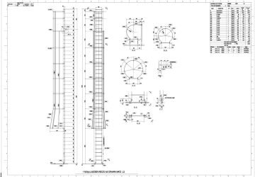
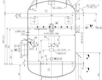
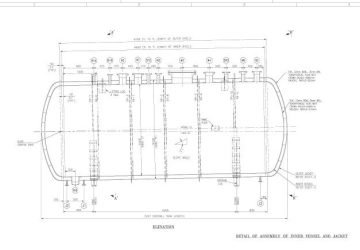
Asia Infotech’s portfolio showcases a complete spectrum of Engineering Design and Detailing Services, with core expertise in Structural Steel Detailing, Mechanical 3D Modelling, Plant Design, and Piping, along with Skid, Tank, and Vessel Drafting services. Leveraging advanced CAD technologies and deep industry knowledge, we produce precise, cost-effective, and highly customized design deliverables. Our global clients rely on us for high-quality engineering support that ensures accuracy, efficiency, and full compliance with international standards.



