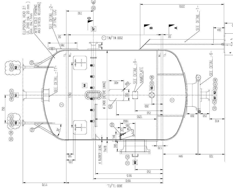
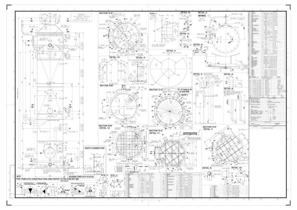
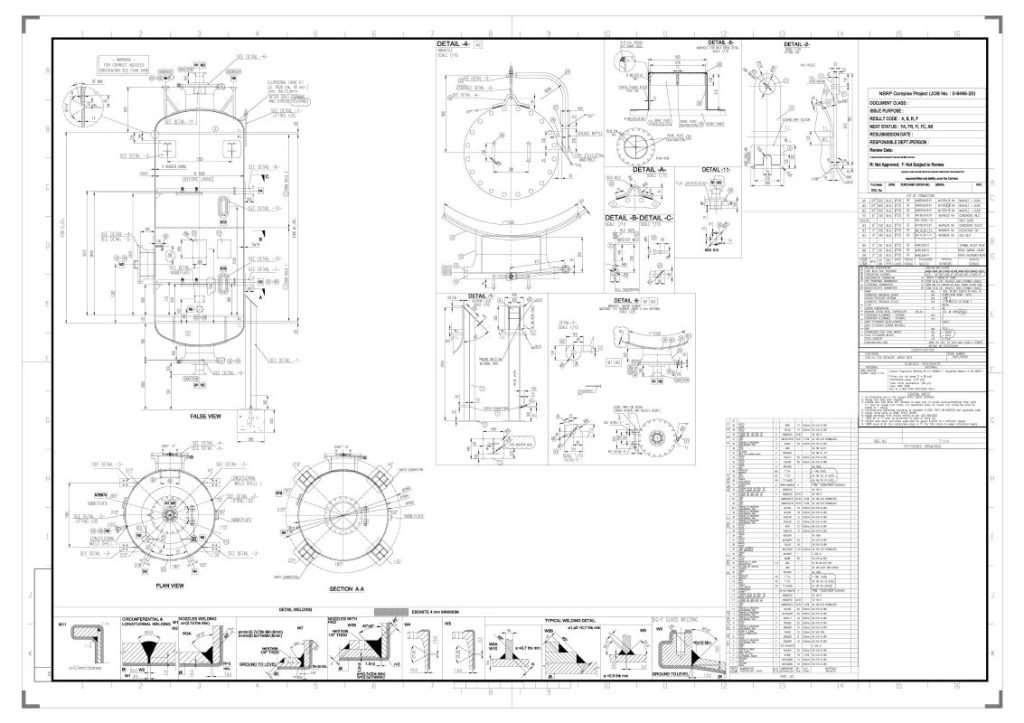
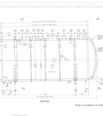
Vessel - Mechanical Engineering
Asia Infotech delivers accurate pressure vessel and storage vessel modelling, including shell development, nozzle orientation, and reinforcement pads. Our drawings follow ASME and global standards. We provide complete fabrication documentation with weld maps and material takeoffs. This ensures safe, compliant, and manufacturable vessel designs










