Derrick Structural Steel Detailing

Derrick Structural Steel Detailing

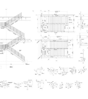
Our team delivers detailed derrick steel structure drawings for heavy-duty industrial applications. We ensure stability, safety, and accurate fabrication support for lifting and rigging structures. Each design adheres to international codes and includes precise member sizing and connection detailing. Our deliverables improve installation efficiency and performance reliability

Derrick Steel Structure at Asia Infotech
Derrick Steel Structure at Asia Infotech
Derrick Steel Structure at Asia Infotech
Derrick Steel Structure at Asia Infotech
Derrick Steel Structure at Asia Infotech

More Portfolio

Ready to discuss your project?