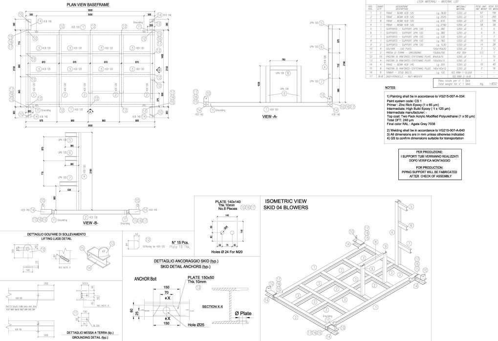
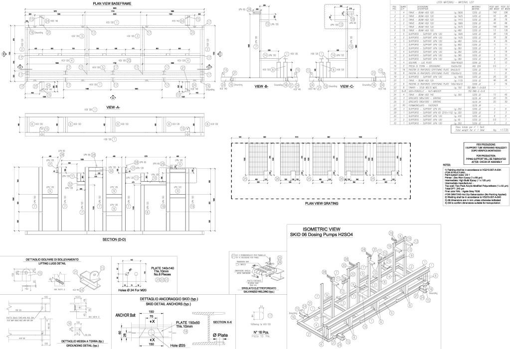
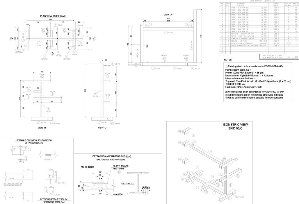
Skid Assembly- Mechanical Engineering
Our skid assembly services include 3D modelling of equipment skids, piping, structural frames, and integrated components. We provide fabrication-ready drawings and BOMs for modular construction. Each skid is optimized for transportability, assembly, and maintenance access. This ensures faster installation and reduced field work










