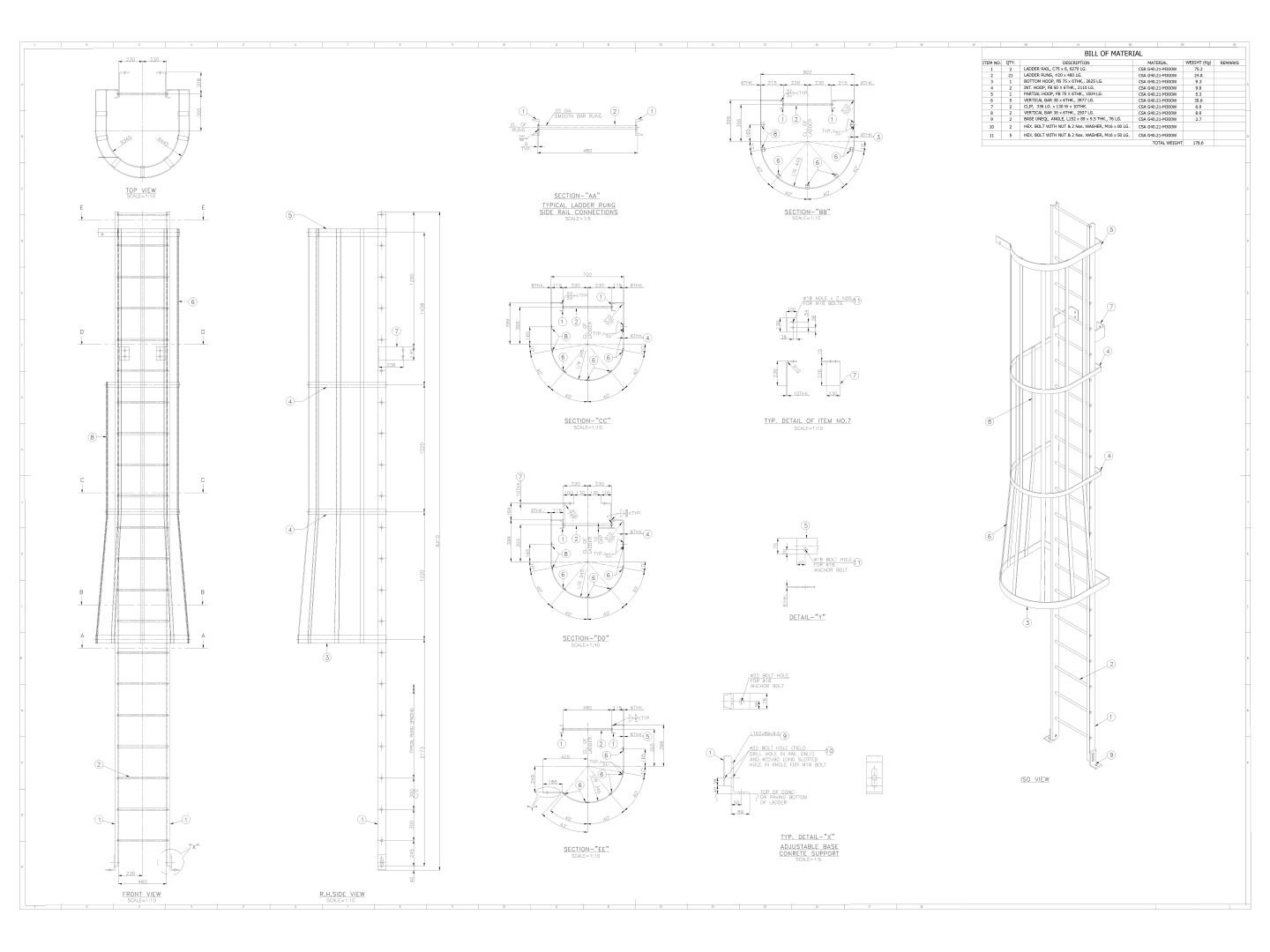
We deliver industrial-grade ladder detailing with exact fabrication drawings and safety-focused layouts. Our detailing covers stringers, cages, platforms, and anchorage systems. Each drawing meets OSHA and global safety standards. The result is a reliable ladder system built for long-term durability






