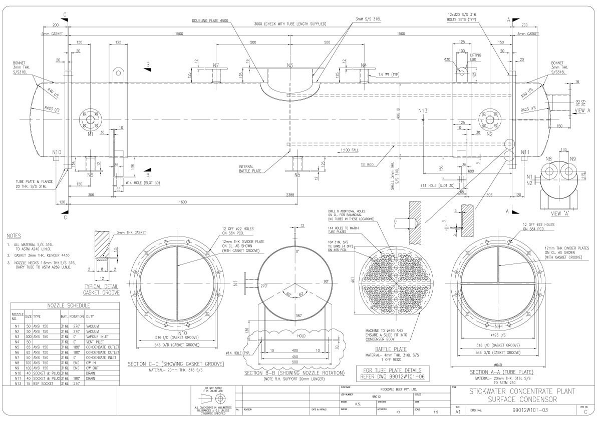
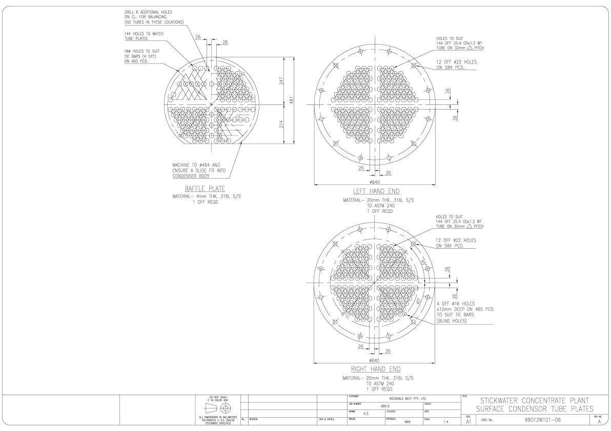
Heat Exchanger - Mechanical Engineering
Our heat exchanger modelling services include tube bundle design, shell detailing, baffle layouts, and fabrication drawings. We ensure compliance with ASME and international standards. Our 3D models improve clarity and manufacturability for fabrication teams. Every deliverable supports safe operation and long service life






